◆ Tæknilegt ferli víkjandi ramma
◆Samkvæmt vélbúnaði og virkni reikirammans er hægt að skipta öllu rammanum í fimm hluta: fóðrun, drög, snúa, vinda og móta. Að auki, til að tryggja framleiðsla og gæði vöru, er hjólagrindin einnig búin nokkrum hjálparbúnaði.
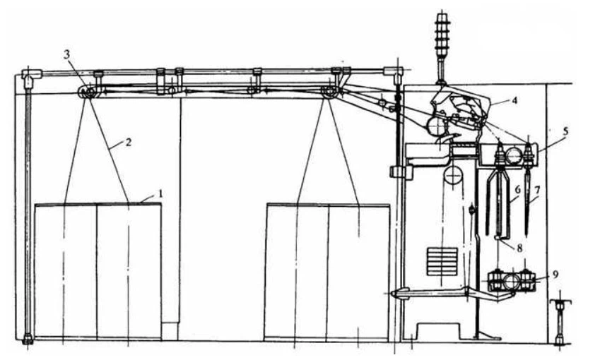
◆ Eftirfarandi mynd sýnir tæknilega ferli vélarinnar. Rifin slípa 2 er leidd út úr tunnunni 1, og er flutt af stýrisvals 3 á virkan hátt til dráttarbúnaðarins 4. Eftir að hafa verið dregin í tilgreindan fínleika af dráttarbúnaðinum er hún borin út af fremri keflinu, snúið með spindle væng 6 til að mynda víking, og leiddi til spólunnar.
◆Snældavængur 6 snýst með snældu 7. Þegar snældan snýst bætir snælduvængurinn við garninu.
◆Spólan er knúin áfram af lyfti rifinu 9. Vegna munarins á snúningshraða milli snælduvængs og spólu er snúningurinn vafnaður á spólunni í gegnum pressulófann 8.
◆Sígandi og lækkandi strengurinn (neðri strengurinn) færist upp og niður með spólunni og gerir sér þannig grein fyrir axial vindingunni við víking á spólunni.
◆Með því að stjórna lyftihraða og lyftisviði rifsins, er hægt að búa til víkjandi túpugarnið með keiluenda styttum.






